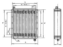
型号 SRZ- |
散热面积 (M2) |
通风净 截面积 (M2) |
热介质 通过截面积 (M2) |
管排数 (排) |
螺旋翅片 管根数 (根) |
连接管 (寸) |
尺寸:mm |
重量
(kg) |
| A |
A1 |
A2 |
B |
B1 |
B2 |
n |
N |
m |
M |
| 5×5D |
10.13 |
0.154 |
0.0043 |
3 |
23 |
11/2" |
497 |
532 |
562 |
507 |
547 |
573 |
5 |
500 |
4 |
400 |
54 |
| 5×5Z |
8.78 |
0.155 |
48 |
| 5×5× |
6.23 |
0.158 |
45 |
| 10×5D |
19.92 |
0.302 |
1001 |
1041 |
1067 |
|
900 |
93 |
| 10×5Z |
17.26 |
0.306 |
84 |
| 10×5X |
12.22 |
0.312 |
76 |
| 12×5D |
24.86 |
0.378 |
1250 |
290 |
1316 |
12 |
1200 |
113 |
| 6×6D |
15.33 |
0.231 |
0.0055 |
3 |
29 |
2" |
623 |
658 |
688 |
609 |
649 |
675 |
6 |
600 |
5 |
500 |
77 |
| 6×6Z |
13.29 |
0.234 |
69 |
| 6×6X |
9.43 |
0.239 |
63 |
| 10×6D |
25.13 |
0.381 |
1001 |
1041 |
1067 |
|
|
115 |
| 10×6Z |
21.77 |
0.385 |
9 |
900 |
103 |
| 10×6X |
15.42 |
0.393 |
93 |
| 12×6D |
31.35 |
0.475 |
1250 |
1290 |
1316 |
12 |
1200 |
139 |
| 15×6D |
37.73 |
0.572 |
1505 |
1545 |
1571 |
14 |
1400 |
164 |
| 15×6Z |
32.67 |
0.579 |
146 |
| 15×6X |
23.13 |
0.591 |
139 |
| 7×7D |
20.31 |
0.320 |
0.0063 |
3 |
33 |
2" |
717.5 |
742 |
772 |
701 |
750 |
776 |
7 |
700 |
6 |
600 |
97 |
| 7×7Z |
17.60 |
0.324 |
87 |
| 7×7X |
12.48 |
0.329 |
79 |
| 10×7D |
28.59 |
0.450 |
1001 |
1041 |
1067 |
9 |
900 |
129 |
| 10×7Z |
24.77 |
0.456 |
115 |
| 10×7X |
17.55 |
0.464 |
104 |
| 12×7D |
35.67 |
0.563 |
1250 |
1290 |
1316 |
12 |
1200 |
156 |
| 15×7D |
42.93 |
0.673 |
1505 |
1545 |
1571 |
14 |
1400 |
183 |
| 15×7Z |
37.18 |
0.685 |
164 |
| 15×7X |
26.32 |
0.698 |
145 |
| 17×7D |
49.90 |
0.788 |
1750 |
1790 |
1816 |
17 |
1700 |
210 |
| 17×7Z |
43.21 |
0.797 |
187 |
| 17×7X |
30.58 |
0.812 |
169 |
| 22×7D |
62.75 |
0.991 |
0.0063 |
3 |
33 |
21/2" |
2202 |
2242 |
2268 |
21 |
2100 |
260 |
| 15×10D |
62.14 |
0.921 |
0.0089 |
3 |
47 |
21/2" |
1001 |
1036 |
1066 |
1505 |
1545 |
1571 |
10 |
1000 |
14 |
1400 |
255 |
| 15×10Z |
52.95 |
0.932 |
227 |
| 15×10X |
37.48 |
0.951 |
203 |
| 17×10D |
71.06 |
1.072 |
1750 |
790 |
1816 |
17 |
1700 |
293, , |
| 17×10Z |
61.54 |
1.085 |
260 |
| 17×10X |
43.56 |
1.106 |
232 |
| 20×10D |
81.29 |
1.226 |
2002 |
2042 |
2068 |
19 |
1900 |
331 | |
|